寻迹荣基胶条——重庆来福士
2021/05/08来源: 荣基塑料制品有限公司浏览:115810
1997年,荣基胶条建厂;1998年,承接东方广场项目;2000年,2001年……北京财富中心、上海电力大厦、香港如心广场、香港环球贸易广场、重庆来福士广场……
20多年来,荣基胶条在许多标志性的国际高端项目中都留下深深的印记,如今的荣基正以矫健的步伐迈向更广阔的征途……走进荣基,探寻荣基的足迹,讲述荣基的故事。

▲重庆来福士
寻迹荣基——重庆来福士
作为“魔幻5D城市”,雾都重庆有着许多值得市民游客打卡的“网红店铺”。但是如果你要问有什么地方可以一次性打卡重庆大部分“网红店”,那毫无疑问,重庆来福士是不二之选。而它,也是荣基胶条最具代表性的工程项目之一。



来福士重庆最热门打卡地
来福士是重庆的地标,也是重庆最高端的购物中心,由新加坡凯德集团投资在华最大的投资项目,投资总额超过240亿元,总建筑面积超过112万平方米,于2019年正式投入使用。

▲来福士结构图
由5层商业裙楼和8栋塔楼组成的来福士项目,建造之时,被业界称为全国设计最复杂、建设难度最高的群体超高层建筑。
建筑整体规划为帆船造型,在塔顶位置(200多米的高空)通过一座水晶廊桥将四座主塔楼串连起来,最高建筑达到350米,属于比较复杂的异型幕墙,且安装高度极具挑战,加大了施工的难度。
项目施工图



来福士幕墙项目使用的全部为荣基的胶条。通过对重庆来福士广场项目的风气候分析、复杂地形风洞试验、多天平风洞试验、高频压力积分试验与第三方风洞试验,得到了等效静力风荷载与加速度响应等参数。当时参与招标的几家企业中,只有荣基的胶条在气密性、水密性、抗风压的检测中符合要求,达到施工方的标准。
01

02

03

荣基胶条严守质量准则,不仅通过JGT 187-2006《建筑门窗用密封胶条》建筑工业行业产品标准、GBT24498-2009建筑门窗、幕墙用密封胶条,还通过ASTM C864 美国标准、BS4255英国标准,以及DIN 7863 德国标准和EN 12365 欧洲标准,胶条产品质量已达到国际水平。

▲荣基产品检测报告
针对来福士项目层高的特殊性,密封胶条除了要考虑常规的物理机械性能外,还要考虑相容性、抗污染性、单层胶条的高度、双层多腔中空胶条的几何尺寸稳定性、施工现场接驳的可操作性,以及胶条的着色性、最大变形量等参数。

▲来福士水晶连廊
水晶连廊是重庆来福士极具特色的点睛之笔,横跨4栋250米高楼顶部,长300米,宽32.5米,高26.5米,面积约1万平方米,相当于一座“躺着建的摩天大楼”,在建设期间就备受国内外瞩目,施工难度和工程亮点刷新国内高层建筑纪录。
综合考虑采光、密封效果以及施工难度,水晶连廊选用了通长达71米的伸缩缝胶条。该胶条安装方便、性能平稳、防水、防尘、噪音小、重量轻,具有良好的物理性能。

▲水晶连廊使用伸缩缝胶条设计图

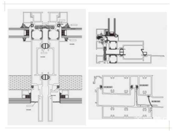
▲荣基胶条部分产品装配图
当然,密封胶条使用的位置不同,它的硬度要求也是不同的。来福士项目充分考虑到使用的环境,常温环境下硬度控制在HA60~70;圆形或方形实心胶条,硬度一般常温是HA50~60;起限位作用的胶条硬度一般常温控制在HA80~90;幕墙单元接缝封堵,既要起密封作用又要吸收应力和变形,它的硬度一般常温控制在HW30~40(发泡的)。

▲荣基胶条部分产品型号
时隔2年,我们再次来到来福士,领略全国最复杂项目的风采。如今的这里,人流如织,看江景、打卡、购物,来福士已经成为重庆人观江、看景、“逛~吃”的首选之地。

▲打卡重庆来福士
走至近处,玻璃幕墙将建筑内外的景致联系起来,生动而鲜活;铝材与胶条完美契合,用极其简单的线条勾勒出最具灵性的空间,使得整座建筑更显瑰丽与壮观。

一座顶级的建筑不仅要靠完美的设计,更要有优质的产品来支撑,它需要每一个参与的企业紧密协作、完美配合,是心血的凝聚,也是实力的考验。在发展的路上,荣基胶条愿与您一路同行,用顶级品质为您的项目保驾护航。

荣基,始于1997

免责声明:美家美户家居网部分文章来源于网络以及企业投稿,如页面信息对您造成影响,请及时联系我们进行处理!
本文地址:http://www.mjmhjj.cn/newsshow/5604.htm
转载本站原创文章请注明来源:美家美户家居网









粤公网安备 44030302001606号